top of page

FIND YOUR NEXT HOME
FAMILY HOUSE
K Series GRAN PASEO Yokohama Kannai PREMIUM 403
2-chōme-7-12 OkinachōNaka Ward, Yokohama, Kanagawa 231-0028
Updated Date:
October 7, 2025 at 4:21:46 AM
205,000
Overview
Apartment & Condominium
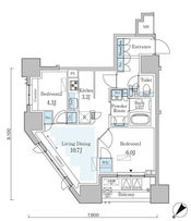
2LDK

Yokohama・Kawasaki
0
㎡

㎡
56.83

RC
Location
Property Address:
2-chōme-7-12 OkinachōNaka Ward, Yokohama, Kanagawa 231-0028
City:
Yokohama 横浜市
Area:
Yokohama・Kawasaki
Nearest Station:
JR Keihin-Tohoku Line京浜東北線
5
mins. walk from
Kannai関内
mins. walk from
Google Map Link:
Details
Type:
Apartment & Condominium
Land Size, ㎡:
0
Balcony Size, ㎡:
0
Bedrooms:
2LDK
Floor Size, ㎡:
56.83
Conditions
Price:
JP¥
205,000
Land Rights:
Freehold
Floor:
Level
4
of
11
Land Rent:
-
Term of Lease:
-
Year Built:
Sept
2021
Management Type:
Fully Consigned
Available From:
Ask
Status:
Contracted
Construction:
RC
Expenses / Charges
Management Fee:
Monthly JP¥
0
Building Sinking Fund:
Monthly JP¥
0
Parking Space:
To be confirmed
Other Expenses:
Monthly JP¥
0
Mortgage Information:
Partner Bank:
*This is calculated with following condition
* loan amount
*loan term
*interest rate
NaN
Similar Listing
bottom of page








