top of page

FIND YOUR NEXT HOME
FAMILY HOUSE
D Series Shibuya Hatsudai 2
2 Chome-18 Hatsudai, Shibuya, Tokyo 151-0061, Japan
Updated Date:
August 8, 2025 at 9:34:30 AM
89,990,000
Overview
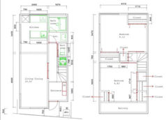
House
2LDK

Shibuya・Ebisu・Daikanyama
52.69
㎡

㎡
63.54

Wooden
Location
Property Address:
2 Chome-18 Hatsudai, Shibuya, Tokyo 151-0061, Japan
City:
Shibuya 渋谷区
Area:
Shibuya・Ebisu・Daikanyama
Nearest Station:
Keio Line京王線
6
mins. walk from
Hatsudai初台
Odakyu Odawara Line小田急小田原線
12
mins. walk from
Sangubashi参宮橋
Google Map Link:
Details
Type:
House
Land Size, ㎡:
52.69
Balcony Size, ㎡:
Bedrooms:
2LDK
Floor Size, ㎡:
63.54
Conditions
Price:
JP¥
89,990,000
Land Rights:
Freehold
Floor:
Level
1
of
2
Land Rent:
-
Term of Lease:
-
Year Built:
Dec
1976
Management Type:
Fully Consigned
Available From:
Ask
Status:
Available
Construction:
Wooden
Expenses / Charges
Management Fee:
Monthly JP¥
0
Building Sinking Fund:
Monthly JP¥
0
Parking Space:
To be confirmed
Other Expenses:
Monthly JP¥
0
Mortgage Information:
Partner Bank:
*This is calculated with following condition
* loan amount
*loan term
*interest rate
NaN
Similar Listing
bottom of page













