top of page
Landlords grow rich in their sleep without working...
Home >
To Invest >
House >
Apartment & Condominium
P SERIES J. GRAN Court Shinagawa Nishi-Oi EAST 101
224000
/ month
Apartment & Condominium
Property Type
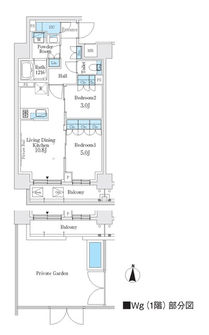
2LDK
Return %
To be confirmed
Yearly Income
48.44
Structure
Sept
2023
Year Built
Description
Property Type
Details
Updated on :
2025年7月14日 03:39:24
Land Area ㎡
1
Selling Price
224000
Building Area ㎡
101
Yearly Income
20000
Year Built
48.44
Yearly Income (Best Scenario)
224000
Building Structure
Return %
Property Type
Total Floors
2LDK
Rental Management Fee
224000
No. of Rooms
Land Usage
Land Rights
1
Commercial
Freehold
%
/ month
Additional Information
贷款信息:
合作银行:
* loan amount
*interest rate
*loan term
*This is calculated with following condition
162,000
Interiors
Features
Landmarks
Property Type

bottom of page











